Многогранная стойка для опоры ПМ220-1
Наличие
Есть
Доставка
По России и СНГ
Оплата
Безналичный расчет
Описание
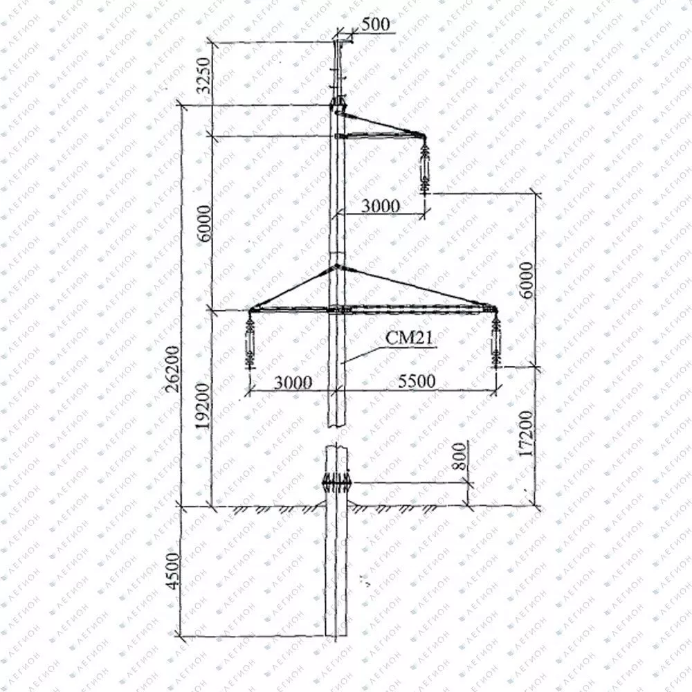
Многогранные стойки, производимые по типовому проекту 26.0033, представляют собой ключевые несущие элементы для сборки одностоечных свободностоящих опор воздушных линий электропередачи напряжением 220 кВ. Эти унифицированные стойки предназначены для комплектации всего спектра опор: промежуточных, анкерных, угловых, концевых и специальных. Они имеют форму полых усеченных пирамид с сечением в виде правильного многогранника, где нижний диаметр составляет 730 мм, а верхний — 446 мм. Для изготовления используется низколегированная сталь, обеспечивающая работу при температурах до -65 °C. Все элементы защищены методом горячего цинкования. Конструкция рассчитана на подвес проводов марок АС300/39 и АС400/51, а также грозозащитного троса ТК 11, и предназначена для эксплуатации в ветровых и гололедных районах I-V.
Конструкция опоры представляет собой сборную систему из конических граненых секций стоек и комплекта траверс. Соединение секций между собой и с траверсами осуществляется на высокопрочных болтовых соединениях фланцевого или телескопического типа, что обеспечивает жесткость и точность сборки. Монтаж опоры на месте производится путем установки собранной конструкции на заранее подготовленный фундамент с последующим фланцевым креплением. Оптимизированная система поставки, при которой секции транспортируются вложенными друг в друга, значительно снижает логистические затраты и упрощает доставку в труднодоступные районы.
Технические характеристики
Применение
Данные стойки применяются для сооружения как одноцепных, так и двухцепных линий электропередачи 220 кВ в различных географических и климатических условиях. Они используются при строительстве новых магистральных линий в населенной и ненаселенной местности. Конструкции востребованы при реконструкции и модернизации существующих воздушных линий с заменой устаревших железобетонных или решетчатых опор. Благодаря свободностоящему исполнению опоры эффективны на участках с ограниченной шириной просеки или сложным рельефом. Универсальность стоек позволяет применять их на всех типах участков трассы: прямых, анкерных, угловых и переходных.
Преимущества практического использования
Использование многогранных стоек по проекту 26.0033 обеспечивает значительные технологические и экономические преимущества. Высокая прочность конструкции позволяет увеличивать межопорные расстояния, что сокращает общее количество опор на линии и снижает затраты на землеотвод. Полная заводская готовность элементов и продуманный монтажный узел ускоряют сборку в 3-4 раза по сравнению с традиционными решениями, сокращая сроки строительства. Экономический эффект от применения таких опор оценивается в 12-15% по сравнению с железобетонными аналогами и до 50% по сравнению с решетчатыми конструкциями. Покрытие методом горячего цинкования гарантирует защиту от коррозии и вандальных воздействий, обеспечивая расчетный срок службы конструкции до 75 лет без необходимости капитального ремонта.
Купить Многогранная стойка для опоры ПМ220-1
НПО «Легион» осуществляет полный цикл производства металлоконструкций для высоковольтных линий электропередачи. Мы изготавливаем многогранные стойки и комплектующие к ним по типовому проекту 26.0033, а также разрабатываем индивидуальные решения на его основе. Наши специалисты готовы предоставить исчерпывающие технические консультации, рассчитать нагрузку и помочь в подборе оптимальной конфигурации для вашего проекта. Для оформления заказа, получения коммерческого предложения или спецификации свяжитесь с нами удобным способом.
Телефон: 8(800)500-51-37
Email: info@legionural.ru
Голосов 6 Рейтинг 4.8